和政县人民医院县域医共体医技综合服务中心建设项目批前公示
和政县卫生健康局向我单位申报了和政县人民医院县域医共体医技综合服务中心建设项目方案设计,我单位按程序规划及建筑专家审查,并通过了规划及建筑专家评审会,按专家意见设计单位已修改完善,现依据《中华人民共和国城乡规划法》《甘肃省城乡规划条例》《甘肃省建设项目规划许可办法》等相关法律规定,在规划许可之前,将有关情况予以公开公示,接受社会公众监督。
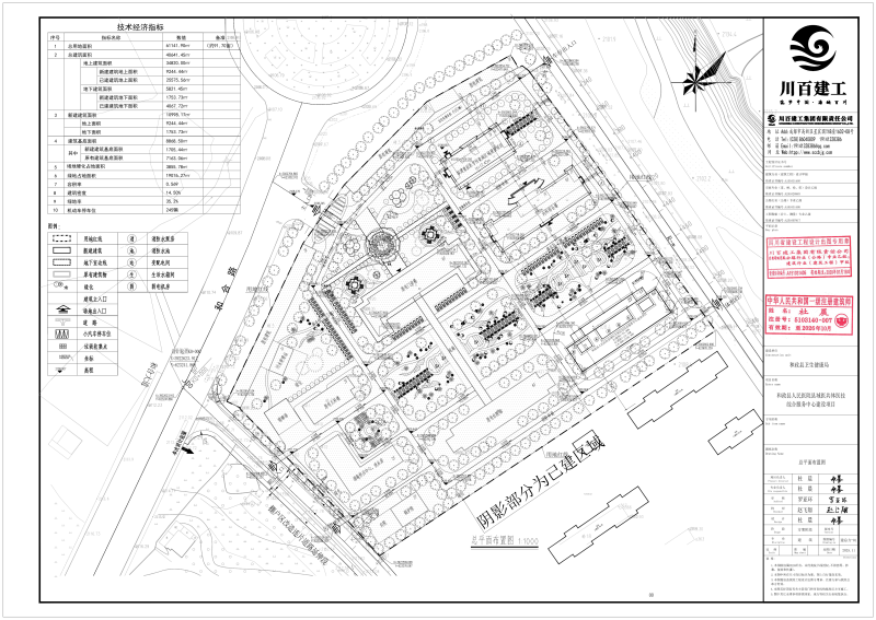
一、项目位置
该项目位于和政县人民医院院内。
二、规划条件
地块用地性质:医疗卫生用地,用地面积为61141.90㎡,容积率≤2.0,建筑密度≤35%,绿地率≥35%,建筑高度≤30米。
三、设计方案中的主要内容及指标
地块面积61141.90㎡,总建筑面积为40641.45㎡ ,地上建筑面积34820㎡(新建建筑面积9244.44㎡,已建建筑面积25575.56㎡),地下建筑面积5821.45㎡(新建建筑面积1753.73㎡,已建建筑面积4067.72㎡),容积率0.569,建筑密度14.50%,绿地率35.2%, 机动车停车位245辆。
四、公示时间及意见反馈
公示时间:7天,2025年12月29日至2026年1月4日。
根据《中华人民共和国行政许可法》第三十六条及第四十七条之规定,行政许可人、利害关系人有权进行陈述、申辩和要求听证的权利。公示期间如有意见和建议,请以书面形式反馈到和政县二号统办楼708室(单位需加盖公章,个人需署真实姓名及联系方式);申请听证的请在公示期间向我单位书面申请。逾期未提出的,视为同意方案及放弃听证权利,我单位将依法作出相关行政许可。
联系地址:和政县二号统办楼708室
联系电话(传真):0930-5522108
附件:
和政县自然资源局
2025年12月29日

