和政县城关镇加油加气合建站建设项目批前公示
临夏鑫辰能源有限公司向我单位申报了和政县城关镇加油加气合建站建设项目方案设计,并按程序组织规划及建筑专家进行了评审,按专家意见设计单位已修改完善,现依据《中华人民共和国城乡规划法》、《甘肃省城乡规划条例》、《甘肃省建设项目规划许可办法》等相关法律规定,在规划许可之前,将有关情况予以公开公示,接受社会公众监督。
一、项目位置
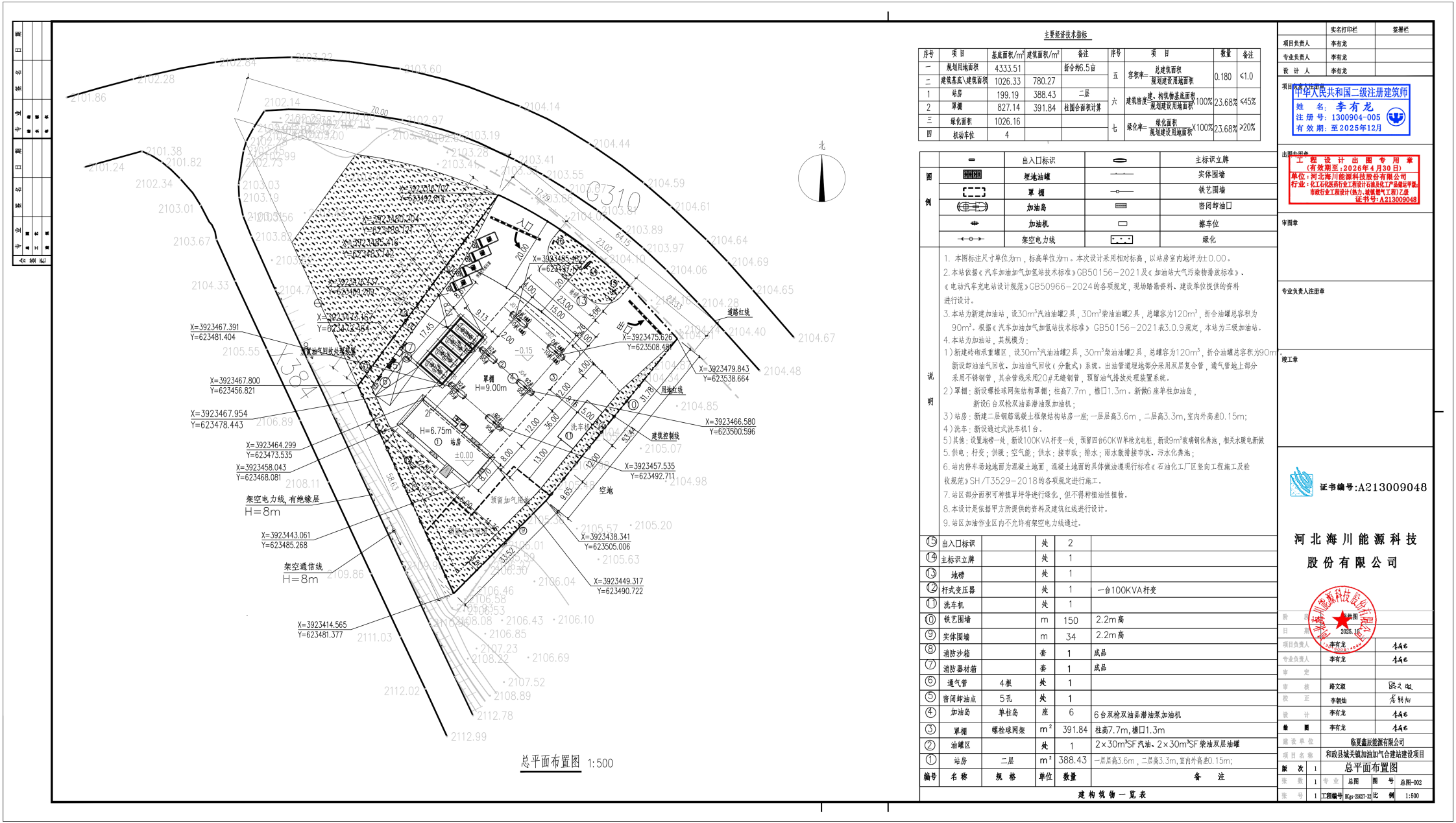
该项目位于和政县城关镇G310国道旁。
二、设计方案中的主要内容及指标
地块面积4334平方米,用途为公用设施营业网点用地。总建筑面积780.27平方米,其中站房388.43平方米,罩棚391.84平方米。容积率0.18,建筑密度23.68%,绿地率22.16%,停车位4辆。
三、公示时间及意见反馈
公示时间:7天,2025年11月03日至2025年11月09日。
根据《行政许可法》第三十六条及第四十七条之规定,行政许可人、利害关系人有权进行陈述、申辩和要求听证的权利。公示期间如有意见和建议,请以书面形式反馈到和政县二号统办楼708室(单位需盖公章,个人需署真实姓名及联系方式);申请听证的请在公示期间向我单位书面申请。逾期未提出的,视为同意方案及放弃听证权利,我单位将依法作出相关行政许可。
联系地址:和政县二号统办楼708室
联系电话(传真):0930-5522108
附件:
和政县自然资源局
2025年11月3日

