和政县城关镇加油加气合建站建设项目建设工程规划许可证批后公布
临夏鑫辰能源有限公司向我单位申请办理和政县城关镇加油加气合建站建设项目建设工程规划许可证,我单位按程序对申报材料进行了审核并做出予以办理的决定,现依据《中华人民共和国行政许可法》《中华人民共和国城乡规划法》《自然资源领域基层政务公开标准指引》等相关法律规定,对许可证证载内容进行公布:
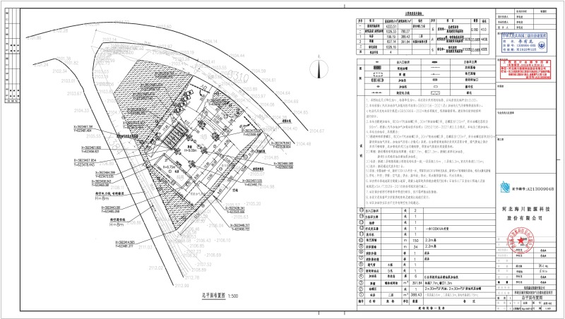
1.建设单位:临夏鑫辰能源有限公司
2.建设项目名称:和政县城关镇加油加气合建站建设项目
3.审批事项:建设工程规划许可证
4.许可证号:建字第622925202500014号
5.建设位置:和政县城关镇G310国道旁
6.批准用地机关:和政县人民政府
7.建设规模:总建筑面积780.27平方米(站房建筑面积388.43平方米,罩棚建筑面积391.84平方米),容积率0.180,建筑密度23.68%,绿地率22.50%。
8.发证日期:2025年11月12日



